Mieszkanie na sprzedaż po generalnym remoncie na U

Mieszkanie na sprzedaż
998 800,00 PLN, Pow. 60,40 m2
Drukuj ofertę
Drukuj ofertę
Typ nieruchomości:
Mieszkanie
Powierzchnia:
60,40 m2
Typ transakcji:
sprzedaż
Liczba pokoi:
3
Lokalizacja:
Warszawa Ursynów , Hawajska
Rok budowy:
1979
Piętro:
8 na 12
Numer oferty:
34964536604
Cena za m2:
16 536,42 PLN
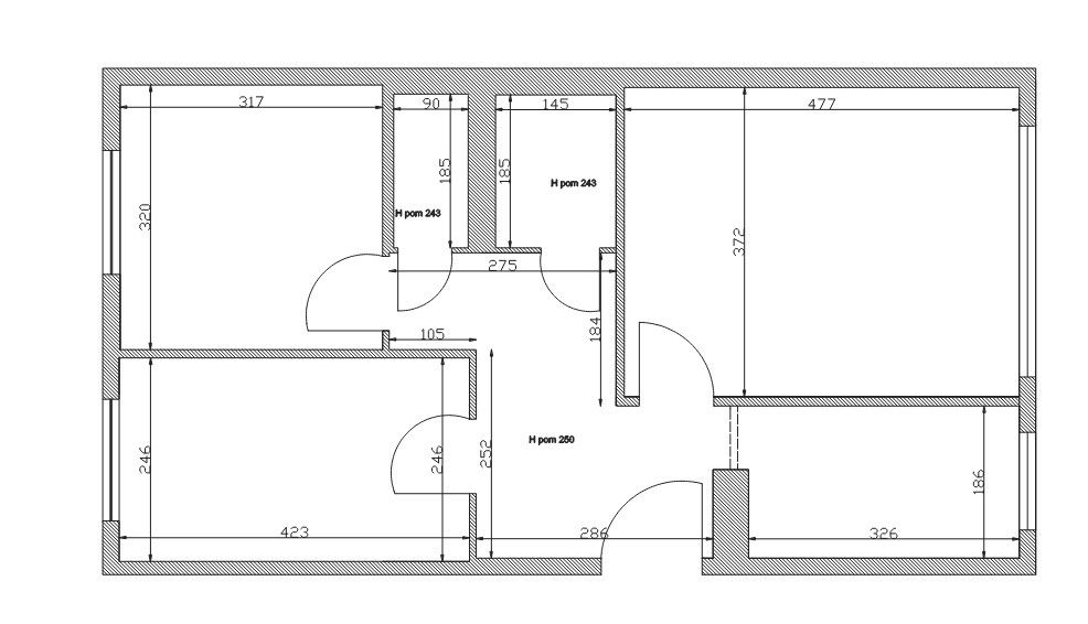
Mamy przyjemność zaprezentować mieszkanie na sprzedaż przy ul. Hawajska 20 na Ursynowie. Lokal znajduje się na 8 piętrze w 12 piętrowym budynku z 1979 roku. Mieszkanie jest gruntownie odremontowane. Posiada 3 rozkładowe pokoje, półotwartą kuchnię z oknem, bardzo jasną, z dużym blatem roboczym. 

Mieszkanie jest jasne, dwustronne z ładnym widokiem na zieleń i inne budynki. Do mieszkanie przynależy piwnica oraz loggia. W mieszkaniu jest klimatyzacja oraz wile funkcjonalnych rozwiązań oraz pojemnych szaf. Układ mieszkania i jasne kolory pozwalają na komfortowe użytkowanie.
Przestronne, 3-pokojowe mieszkanie na sprzedaż Ursynów, ul. Hawajska
Na sprzedaż wygodne, w pełni umeblowane mieszkanie o powierzchni 60,40 m², położone w zielonej części Ursynowa, zaledwie 500 m od stacji metra Imielin. To świetna propozycja dla osób szukających gotowego do wprowadzenia lokum w spokojnej okolicy z pełną infrastrukturą pod ręką.

Atuty mieszkania:
3 pokoje i otwarta kuchnia z oknem idealne dla rodziny lub pod wynajem
duży salon z wyjściem na balkon z widokiem na zielone patio
słoneczne, dwustronne wnętrze południowy zachód (salon, kuchnia) i północny wschód (sypialnie)
zadbany stan techniczny mieszkanie po remoncie, odświeżone ściany, drewniana klepka w pokojach, gres w kuchni, przedpokoju i łazience
możliwość zakupu z pełnym wyposażeniem i meblami ruchomymi gotowe do zamieszkania bez dodatkowych nakładów.

Układ pomieszczeń:
- salon 
- kuchnia 
- pokój 
- pokój 
- przedpokój 
- łazienka z dużym prysznicem 
- osobne WC
- piwnica ok.

Lokalizacja:
Mieszkanie znajduje się w cichej, zielonej okolicy z bardzo dobrą komunikacją:
- metro Imielin 500 m
- przystanki autobusowe (136, 504, 263, N86) 280 m
- w pobliżu Las Kabacki, parki, sklepy, szkoły, ośrodek sportu i rekreacji, punkty usługowe oraz Urząd Dzielnicy Ursynów.

Informacje dodatkowe:
- 8 piętro w 12-piętrowym budynku z 1979 r. z windą 
- parkowanie pod blokiem na ogólnodostępnych miejscach
- forma własności: spółdzielcze własnościowe prawo do lokalu
- grunty nieuregulowane zakup tylko gotówkowy

To mieszkanie łączy w sobie wygodę dużego metrażu, funkcjonalny układ i doskonałą lokalizację. Idealne zarówno do zamieszkania, jak i jako inwestycja pod wynajem.

Zapraszam do kontaktu i umówienia się na prezentację.
Nieprawidłowy adres E-mail