Dwupoziomowy apartament | Przy ul. Poznańskiej

Mieszkanie na sprzedaż
2 700 000,00 PLN, Pow. 117 m2
Drukuj ofertę
Drukuj ofertę
Typ nieruchomości:
Mieszkanie
Powierzchnia:
117 m2
Typ transakcji:
sprzedaż
Liczba pokoi:
3
Lokalizacja:
Warszawa Śródmieście
Rok budowy:
1935
Piętro:
5 na 5
Numer oferty:
34964533738
Cena za m2:
23 076,92 PLN
DWUPOZIOMOWY APARTAMENT W JEDNYM Z NAJLEPSZYCH ADRESÓW W ŚRÓDMIEŚCIU

Przestronne wnętrza | Piękne widoki | Zabytkowa kamienica | Świetna komunikacja miejska | Bliskość wyjątkowych restauracji i kawiarni 

*****

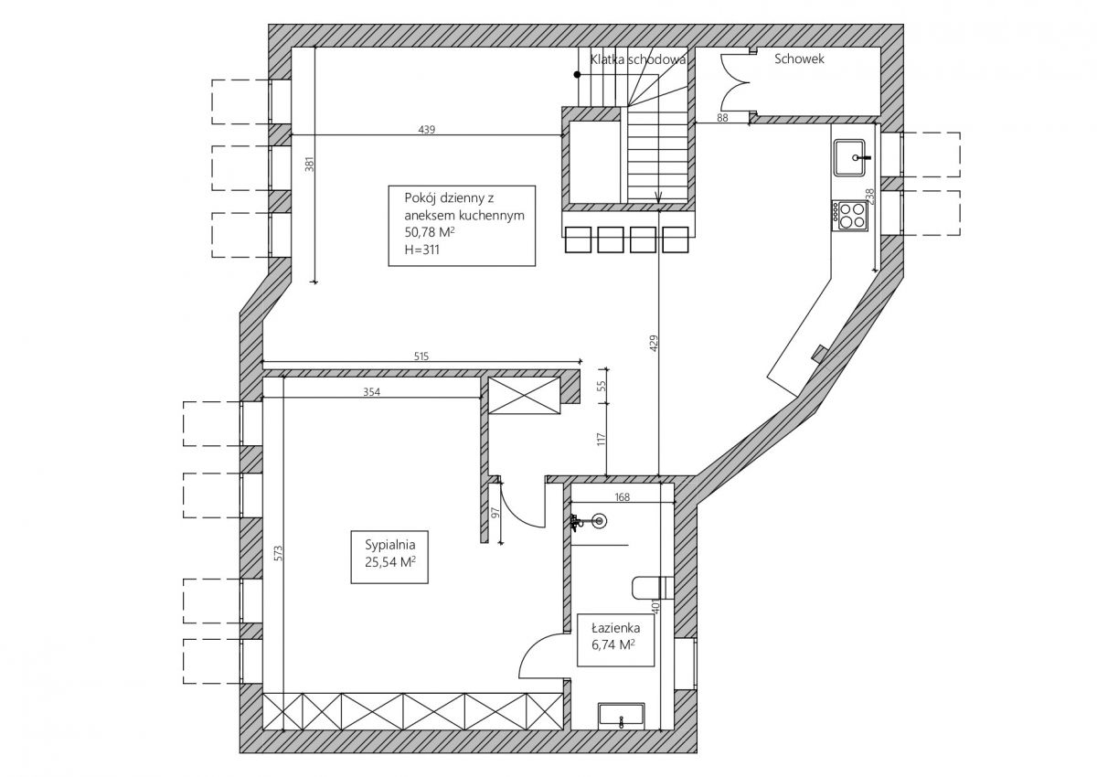
ROZKŁAD POMIESZCZEŃ:

Na pierwszym poziomie znajdziemy:
* Sypialnie / duży gabinet z pięknym widokiem,
* łazienkę z dużą wanną,
* garderobę,
* kotłownie.

Na drugim poziomie znajdziemy:
* Przestronną otwartą przestrzeń salonu,
* otwartą na salon w pełni wyposażoną kuchnię ze spiżarnią,
* sypialnia master z łazienką (prysznic).


LOKALIZACJA:

Apartament znajduje się przy ulicy Poznańskiej, w miejscu, które z każdym rokiem staje się coraz piękniejsze, przywracany blask przedwojennych kamienic, nowo otwarte punkty gastronomiczne oraz turystyczne sprawiają, że coraz więcej ludzi ceni sobie życie w okolicy. Lokalizacja w centrum stolicy pozwala na świetny dostęp do wszelkich punktów usługowych oraz środków transportu miejskiego. Dużym atutem mieszkania jest również piękny widok ponad dachami kamienic wzdłuż Hożej, Wilczej i Poznańskiej. 


INFORMACJE DODATKOWE:

* Czynsz administracyjny wynosi: 710 PLN.
* Dodatkowo płatny gaz oraz prąd.
* Istnieje możliwość powiększenia mieszkania o dodatkowe pomieszczenie na dolnej kondygnacji.


Zapraszam do kontaktu!

Nieprawidłowy adres E-mail