3-pokojowe mieszkanie przy ul. Przejezdnej

Mieszkanie na sprzedaż
740 000,00 PLN, Pow. 53,02 m2
Drukuj ofertę
Drukuj ofertę
Typ nieruchomości:
Mieszkanie
Powierzchnia:
53,02 m2
Typ transakcji:
sprzedaż
Liczba pokoi:
3
Lokalizacja:
Warszawa Białołęka , Przejezdna
Rok budowy:
2020
Piętro:
2 na 3
Numer oferty:
34964524878
Cena za m2:
13 957,00 PLN
Mieszkanie przy ulicy Przejezdnej 12 na warszawskiej Białołęce – gotowe do wprowadzenia, dostępne od zaraz

Inwestycja Aura Garden została zrealizowana przez renomowanego dewelopera Mill-Yon, znanego z dbałości o wysoką jakość wykończenia. Osiedle wyróżnia się starannie zaprojektowanymi częściami wspólnymi, bogatymi w zróżnicowaną roślinność, które nadają mu przyjazny i zielony charakter. Dodatkowym atutem jest spokojna i cicha okolica, gwarantująca komfort codziennego życia.

Forma własności: pełna własność z księgą wieczystą – możliwy zakup na kredyt hipoteczny.

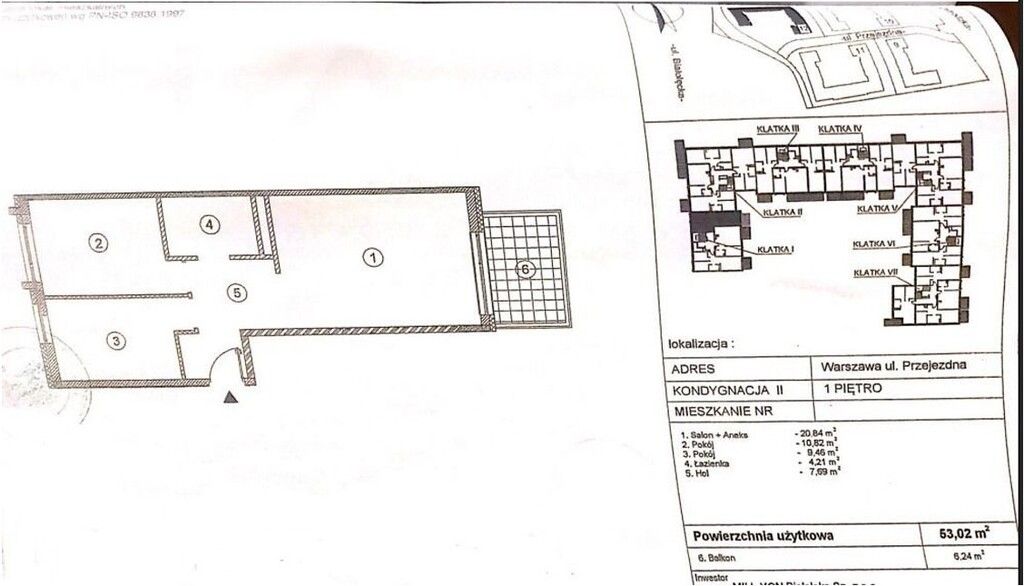
Na mieszkanie o powierzchni 53,02 m² na 2 piętrze, w budynku z windą, składają się:

  • Salon z aneksem kuchennym (20,84 m²) z wyjściem na balkon (6,24 m²), ekspozycja wschodnia
  • Sypialnia (10,82 m²) z ekspozycją zachodnią
  • Pokój (9,46 m²) z ekspozycją zachodnią
  • Łazienka z wanną (4,21 m²)
  • Hol (7,69 m²)


Lokalizacja – Białołęka, ul. Przejezdna

  • Spokojna, zielona okolica z pełną infrastrukturą
  • Szybki dojazd do Trasy Toruńskiej
  • Komunikacja miejska: przystanki autobusowe (120, 134)
  • W pobliżu liczne sklepy (Carrefour, Lidl, Biedronka, Netto), a także centra handlowe: Factory Annopol, M1, Galeria Północna i CH Marywilska
  • Ścieżki spacerowe i tereny rekreacyjne wzdłuż Kanału Żerańskiego


Parking

Do mieszkania przynależy miejsce postojowe w garażu podziemnym na poziomie -1 dodatkowo płatne 40 000 zł

Opłaty

Czynsz administracyjny: 850 zł – zawiera m.in. opłaty za fundusz remontowy, zaliczki na wodę, wywóz śmieci, centralne ogrzewanie, koszty eksploatacyjne oraz garaż

Mieszkanie jest gotowe do wprowadzenia – idealne zarówno dla rodziny, pary, jak i jako inwestycja pod wynajem.

Zapraszam do kontaktu w celu uzyskania dodatkowych informacji i umówienia prezentacji

Nieprawidłowy adres E-mail